︎

Cheolmin Kim







About
Projects
Features

Email
@cheol.min.kim



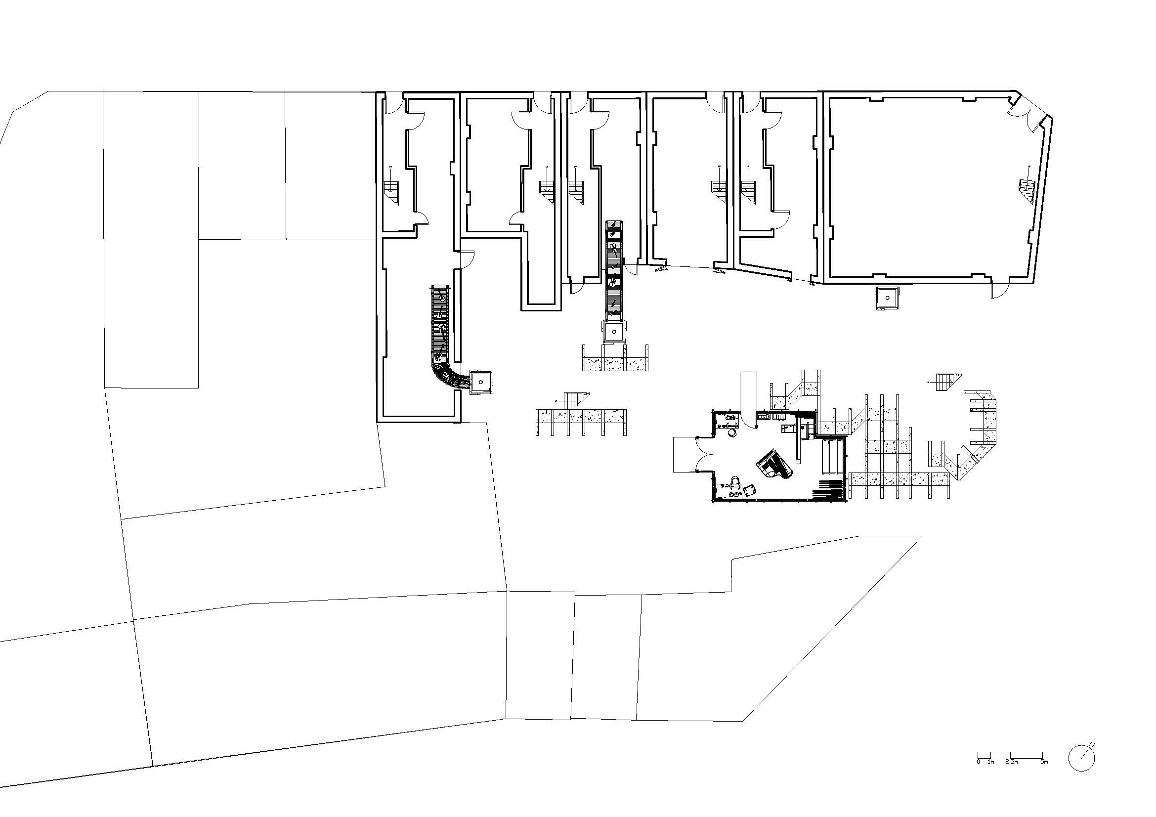
Ground Floor: Tuning musical instrument repair workshop 


Piano repair workshop