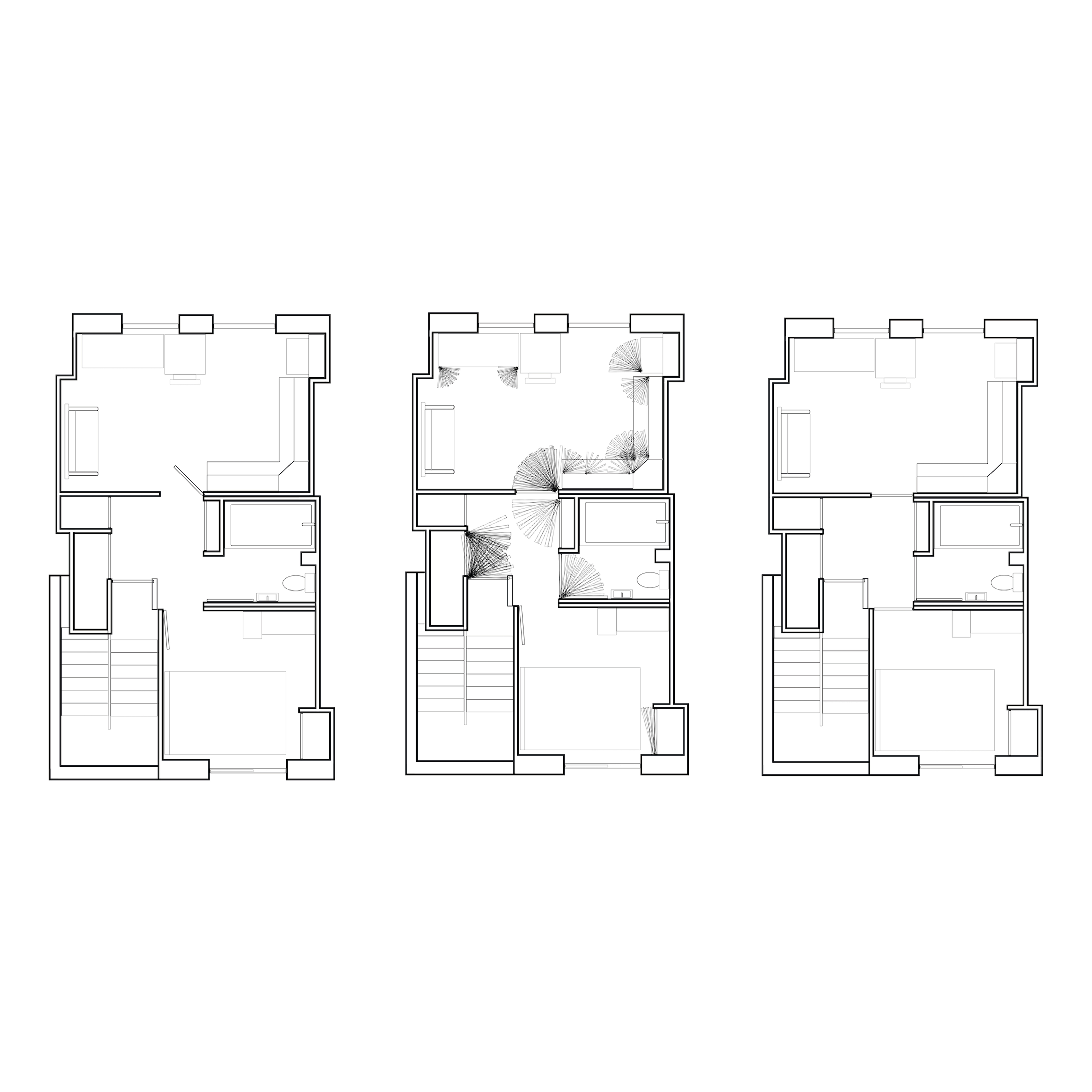
The rotating world : Increasing disorder of doors’ movement
This project is an investigation of one of my routines which is opening doors. My flat has 8 doors. Every single day, I always have been opening many doors for living.
Time based drawing shows how many time I have opened the doors every day. The most interesting actions are the main door and the wardorbe door movements that make an overlap.
Scale 1:100 in A1


