︎

Cheolmin Kim







About
Projects
Features

Email
@cheol.min.kim



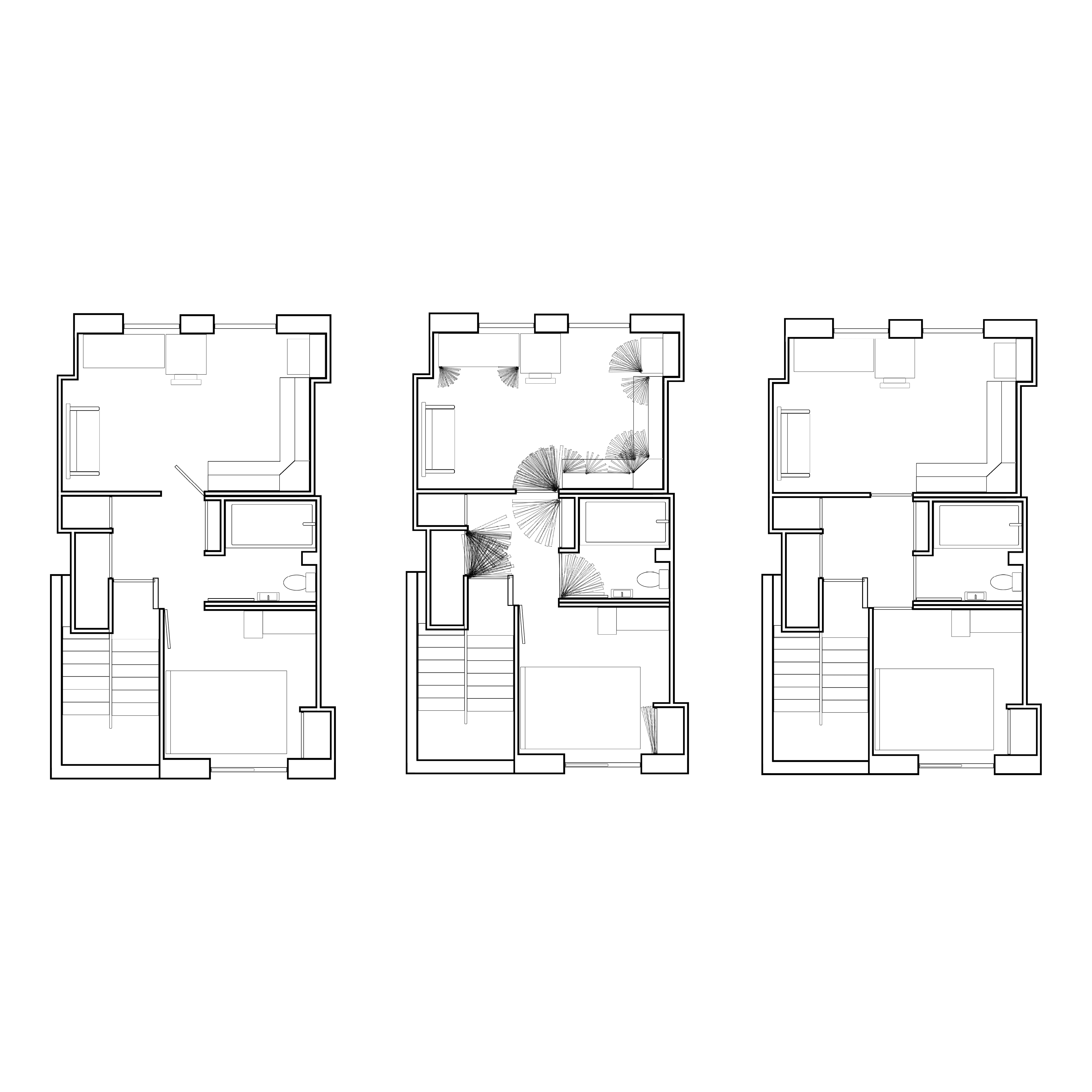
The rotating world: Details section drawing of the folding system The rotating world: Section BB' 1:100 The rotating world: Details section drawing of View point The rotating world: Section AA' 1:100 The rotating world: 3F The rotating world: 3F The rotating world: 2F The rotating world: 1F The rotating world: GF The rotating world: Exterior  The rotating world: Section Axonometric view and detail  The rotating world: Exploded Axonometric  The rotating world: Elevations  The rotating world: Facade hand drawing  The rotating world: Section hand drawing The rotating world: Final Model The rotating world: Pinned-model The rotating world: Paper model The rotating world: Collapses deliberately 1:100 The rotating world: Collapses deliberately 1:50  The rotating world: Scale drawings of Portland Mews  The rotating world: Portland Mews, London The rotating world: Door as a drawing device The rotating world: Axonometric of Flat E The rotating world: Increasing disorder of doors' movement