︎
Cheolmin Kim
About
Projects
Features
Email
@cheol.min.kim
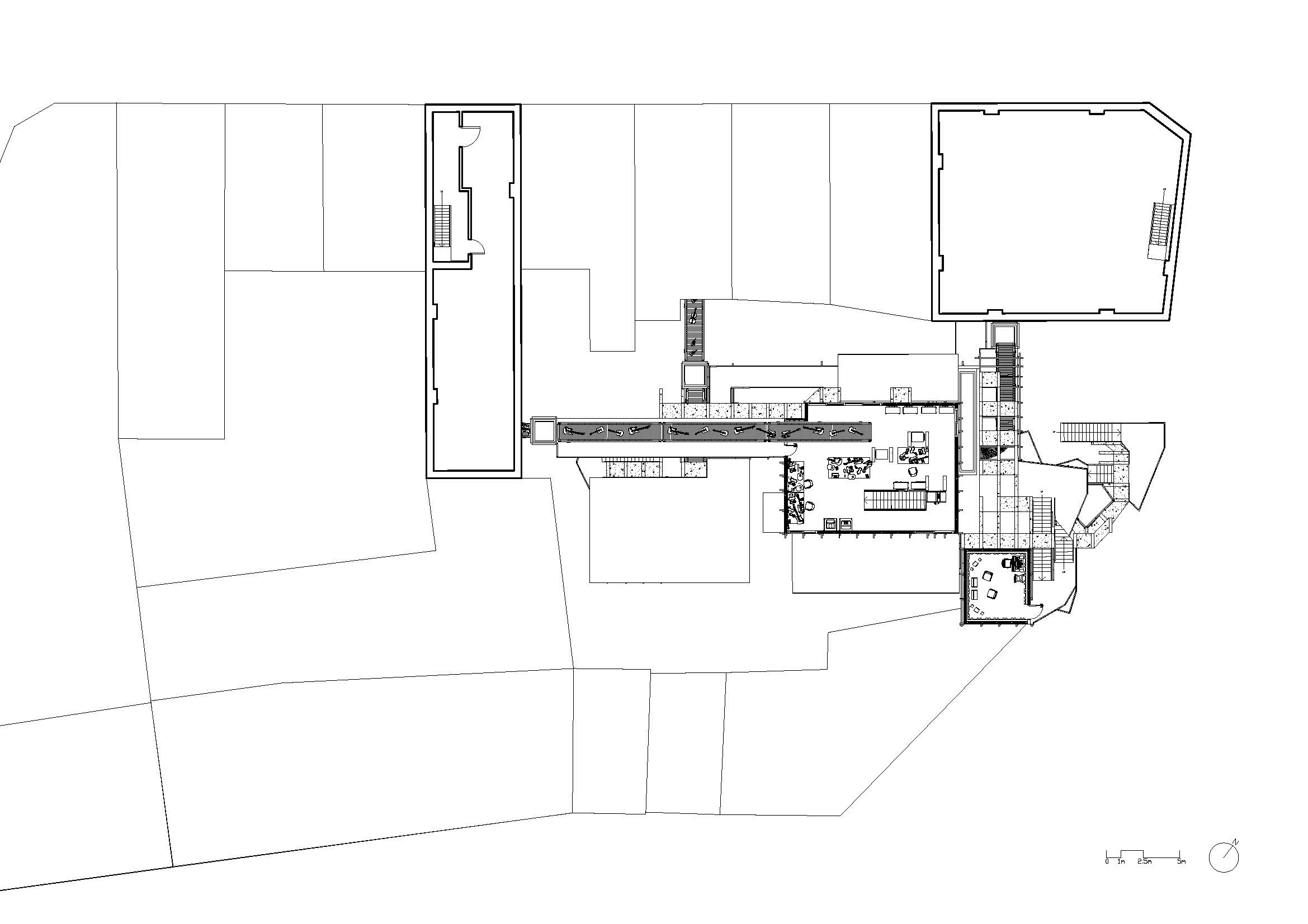
Third Floor: Tuning musical instrument repair workshop
Acoustic and electronic guitars repair workshop and Sounds tuning studio